STUDIO1106 werkt samen met buurtbewoners en toekomstige bewoners van Geins. Naast participatie- en co-creatiebijeenkomsten worden regelmatig crowdsourcing enquêtes uitgestuurd naar belangstellenden en buurtbewoners. Zo heeft STUDIO1106 belangstellenden gevraagd naar hun mening over de concept woningplattegronden van de 4 woningtypes in Geins. Bekijk je liever eerst de woningtypes, voordat je de resultaten leest van de enquête leest?
De enquête ‘woningtypes en woningplattegronden’ is door 210 respondenten ingevuld. Er zijn vier woningtypen in Geins; (1) Compacte driekamerappartementen, (2) Royale drie- en vierkamerappartementen, (3) Tweelaagse stadswoningen en (4) Grondgebonden herenhuizen en meergeneratiewoningen. In onderstaande tabel is te zien dat het woningtype ‘herenhuizen en meergeneratiewoningen’ het meest favoriet is.

De driekamerappartementen compact van 70m2 zijn er in verschillende varianten en beschikken over een eigen buitenruimte. Van de respondenten die hebben aangegeven dat dit woningtype hun favoriet is, heeft 47% voorkeur voor variant 3, 43% voor variant 2 en 11% voor variant 2. Als toelichting op de vraag of de plattegrond voldoet aan de woonwensen zijn uiteenlopende reacties gegeven. Het heeft de voorkeur dat de woonkamer grenst aan de buitenruimte, en niet een slaapkamer. Ook heeft niet iedereen behoefte aan twee slaapkamers, één slaapkamer is voldoende als zo een grotere woonkamer kan worden gerealiseerd. Verder wordt aangegeven dat het fijn is als de keuken wat meer afgeschermd is van de woonkamer, zodat je vanuit de woonkamer niet direct op het aanrecht kijkt.

De drie- en vierkamerappartementen royaal van circa 88 m2 tot circa 100m2 zijn perfect als je op zoek bent naar een ‘maatje meer’. Van de getoonde plattegronden in de enquête, is variant 2 met 54% het meest favoriet. Variant 1 is krijgt de tweede plaats met 46% van de stemmen. Respondenten geven aan dat de plattegronden overzichtelijk zijn ingedeeld. Men geeft aan dat, als er geen ruimte is voor zowel een bad en douche, de voorkeur uitgaat naar een douche. Ook heeft niet iedereen behoefte aan een bad, dit is een mooie kopersoptie. Verder geeft een aantal respondenten aan dat het fijn is als de keuken deels afgeschermd kan worden van de woonkamer.

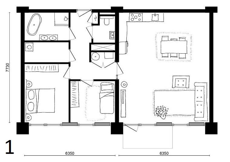
De tweelaagse stadswoningen, ook wel maisonnettes, zijn gelegen op de begane grond en eerste verdieping van beide woonblokken. Respondenten die de stadswoning als favoriete woningtype hebben aangevinkt, is gevraagd welk van de 3 woningplattegronden hun voorkeur heeft. Variant 1 en 3 gaan gelijk op met beiden 36% van de stemmen. Variant 2 is minder populair met 29% van de stemmen. Respondenten geven aan dat het fijn is als ook op de 1e verdieping een separaat toilet aanwezig is, aangezien ook op deze verdieping gasten worden ontvangen in de woon-/leefkeuken. Ook is het fijn als er, op de verdieping waar geen keuken is, wel de mogelijkheid is voor een kleine pantry.


Aan de waterzijde van Geins komen de herenhuizen en meergeneratiewoningen. Er zijn maar liefst vijf varianten voorgelegd aan de respondenten. Variant 5 is het meest favoriet met 33% van de stemmen, gevolgd door variant 4 (26%), variant 3 (20%), variant 1 (14%) en tot slot variant 2 (7%). De reacties van respondenten lopen uiteen. De voorkeuren zijn sterk afhankelijk van of iemand hier met een gezin wil gaan wonen of met meerdere generaties. Gezinnen hebben voorkeur voor wonen op de begane grond en de slaapkamers op de verdiepingen. Meergeneratie huishoudens zien graag op de begane grond een woongedeelte met slapen en sanitair voor de inwonende (schoon)ouder, zodat trap lopen niet nodig is. De woonverdieping komt dan op de eerste verdieping en de slaapkamers op de begane grond en tweede verdieping. Respondenten geven aan dat het fijn is dat de 2e verdieping indelingsvrijheid biedt. Optioneel kan daar dan een compacte badkamer en keuken worden gerealiseerd. Dat is bijvoorbeeld handig voor een volwassen, thuiswonend kind.



Namens STUDIO1106; Hartelijk dank voor het invullen van de enquête. Dit levert relevante inzichten op die STUDIO1106 kan verwerken in de verdere uitwerking van de indelingsvarianten en de plattegronden van de woningen in Geins.

De getoonde plattegronden zijn indicatief en worden nog verder uitgewerkt door STUDIO1106. Belangstellenden denken mee met STUDIO1106 over de indelingsvarianten en plattegronden middels co-creatiebijeenkomsten en crowdsourcing enquêtes.
Blog door Marieke van Soest - Verkoopmanager STUDIO1106